Hoofdafbeelding H.M. Brouwerstraat 6
Foto 14
Foto 29
Home Aanbod H.M. Brouwerstraat 6

H.M. Brouwerstraat 6

9672 AG Winschoten

€ 585.000,- k.k.

Eind jaren negentig is op een bedrijventerrein aan de zuidzijde van Winschoten, ‘op de route’ richting Blijham en Oude Pekela een vrijstaande bedrijfswoning gerealiseerd. Het geheel wordt in de eerste plaats gekenmerkt door de degelijke en royale uitvoering ervan. Het laatste blijkt onder mee uit de aanwezigheid van maar liefst vijf slaapkamers en twee badkamers. Overigens, één van de slaap- en van de badkamers is op de begane grond gesitueerd. Hierdoor is het woonhuis ook levensloopbestendig te gebruiken. Het terrein is grotendeels verhard en bebouwd met diverse opstallen, waaronder een functionele Romneyloods van bijna 135 vierkante meter.

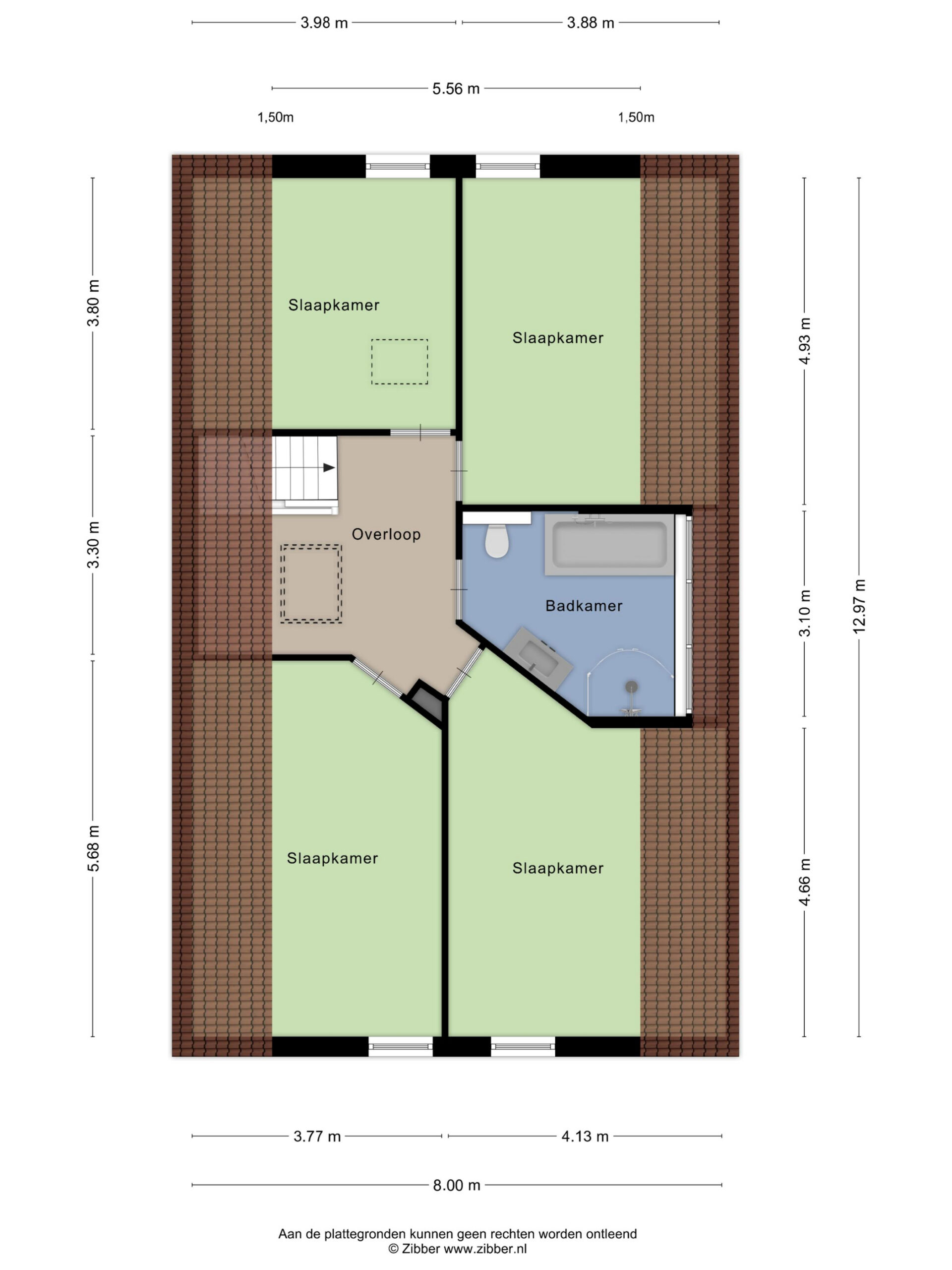
De indeling van het woonhuis is naast levensloopbestendig ook royaal en functioneel te noemen. Zo zijn er op de begane grond naast een slaapkamer ook een woon- en eetkamer aanwezig, waartussen een royale keuken. Op deze woonlaag tevens een ontvangsthal met toilet en trapopgang naar de eerste verdieping tezamen met een aangebouwde bijkeuken voorzien van een tweede toilet, een badkamer alsmede was- en stookruimte. Op de eerste verdieping vinden we nog eens vier bruikbare slaapkamers, allen voorzien van laminaatvloeren. Tot slot de moderne badkamer, compleet met dakkapel, ligbad, douchecabine, wastafelmeubel en derde toilet.

LET OP:
- Het betreft uitdrukkelijk een bedrijfswoning waarbij alleen in combinatie met bedrijfsactiviteiten gewoond mag worden!
- De bedrijfsbestemming leidt tot aangepaste financieringsmogelijkheden! Vraag vooraf naar uw mogelijkheden!

Algemeen

  • StatusBeschikbaar
  • Koopprijs€ 585.000,- k.k.
  • AanvaardingIn overleg

Bouwvorm

  • Soort objectWoonhuis
  • Soort woningEengezinswoning
  • Type woningVrijstaande woning
  • Bouwjaar2004
  • BouwvormBestaande bouw
  • LiggingenAan rustige weg, Vrij uitzicht, Open ligging, Bedrijventerrein

Indeling

  • Woonoppervlakte195 m2
  • Perceeloppervlakte1.390 m2
  • Inhoud739 m3
  • Aantal kamers6
  • Aantal slaapkamers4
  • Aantal badkamers2

Energie

  • EnergieklasseA
  • VerwarmingCV ketel, Vloerverwarming gedeeltelijk
  • C.V.-KetelBosch
  • Bouwjaar C.V.-Ketel2018
  • WarmwaterCV ketel
  • IsolatieDakisolatie, Muurisolatie, Vloerisolatie, HR glas
  • CombiketelNee
  • BrandstofGas
  • EigendomEigendom

Buitenruimte

  • TuinAchtertuin, Voortuin, Zijtuin
  • HoofdtuinAchtertuin
  • Oppervlakte570 m2
  • AchteromJa
  • Kwaliteit tuinNormaal

Bergruimte

  • Schuur / BergingOnbekend
  • VoorzieningenVoorzien van elektra, Met vliering
  • Totaal aantal1

Parkeergelegenheid

  • Parkeer faciliteitenOp eigen terrein
  • GarageGeen garage

Overig

  • Permanente bewoningJa
  • Onderhoud binnenGoed
  • Onderhoud buitenGoed
  • Huidig gebruikWoonruimte
  • Huidige bestemmingWoonruimte

Zuidbroek

Kerkstraat 42a,
9636 AC Zuidbroek
+31598 453 355
Brandsma de Jong – Zuidbroek

Vragen?

Wij helpen u graag