Hoofdafbeelding Torenstraat 3
Foto
Foto 2
Home Aanbod Torenstraat 3

Torenstraat 3

9679 BN Scheemda

€ 300.000,- k.k.

Torenstraat 3 in Scheemda is een veelzijdige locatie met een uitstekende bereikbaarheid en tal van mogelijkheden. De woning ligt op een gunstige plek in het dorp, met de op- en afrit van de A7 op korte afstand. Hierdoor zijn steden zoals Groningen en Winschoten snel en eenvoudig bereikbaar. Ook het streekziekenhuis in Scheemda bevindt zich in de directe omgeving, wat de locatie extra aantrekkelijk maakt voor zowel bewoners als professionals.

Wat deze plek bijzonder maakt, is de combinatie van wonen en werken. De indeling en ligging bieden volop kansen om bijvoorbeeld een praktijk, kantoor of atelier aan huis te realiseren. Hierdoor is het object zeer geschikt voor ondernemers, zzp’ers of mensen die graag werk en privé op één plek samenbrengen.

Torenstraat 3 biedt daarmee niet alleen een fijne woonomgeving, maar ook de flexibiliteit om uw eigen invulling te geven aan de ruimte. Een ideale plek voor wie comfortabel wil wonen met alle voorzieningen en belangrijke uitvalswegen binnen handbereik, en tegelijkertijd de mogelijkheid wil hebben om wonen en werken te combineren.

Begane grond: entree bovenwoning; hal met trappenhuis en meterkast.
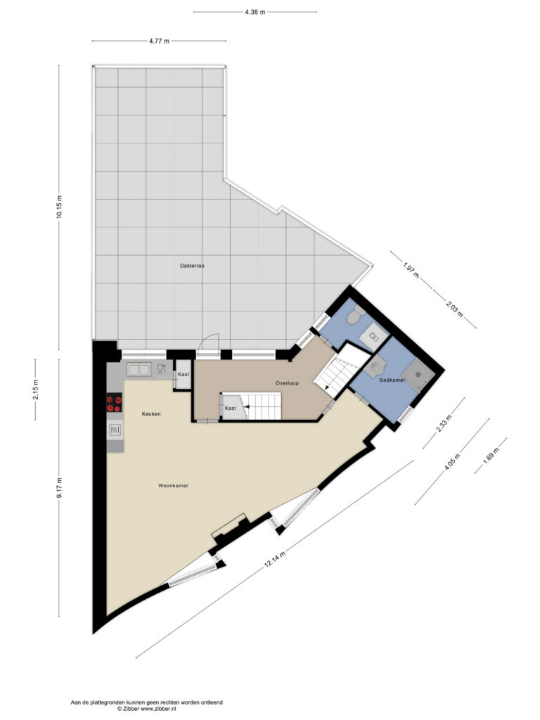
Eerste verdieping: overloop met toilet; royale woonkamer met sfeervolle schouw; hal open keuken met keuken in hoekopstelling; badkamer met wastafel en doucheruimte; via overloop is een ruim en zonnig dakterras bereikbaar.
Tweede verdieping: overloop; drie slaapkamers.

Bedrijfsruimte begane grond: showroom/winkelruimte; zes afgescheiden "praktijkruimtes' (eenvoudige opnieuw in te delen); achterhal; bergingsruimte met achterentree; grenzend aan de bedrijfsruimte is een keuken met keukenblok en toilet aanwezig.

Extra informatie:
- geschikt voor eigen bewoning;
- mogelijkheden voor belegging;
- uitstekende combinatie voor wonen/werken;
- gebruiksoppervlakte wonen 109m2;
- kantoor-/winkelruimte: ca. 148 m² vvo
- magazijn/berging ca. 42m2;
- zonnige dakterras van ca. 55m2 op eerste verdieping!

Kortom een uniek object met vele mogelijkheden! Snelle aanvaarding mogelijk!

Algemeen

  • StatusBeschikbaar
  • Koopprijs€ 300.000,- k.k.
  • AanvaardingIn overleg

Bouwvorm

  • Soort objectWoonhuis
  • Soort woningHerenhuis
  • Type woningGeschakelde woning
  • Bouwjaar1920
  • BouwvormBestaande bouw

Indeling

  • Woonoppervlakte275 m2
  • Perceeloppervlakte226 m2
  • Inhoud1.053 m3
  • Aantal kamers5
  • Aantal slaapkamers3
  • Aantal badkamers1

Energie

  • EnergieklasseC
  • VerwarmingCV ketel
  • C.V.-KetelNefit
  • Bouwjaar C.V.-Ketel2019
  • WarmwaterCV ketel
  • IsolatieDubbelglas
  • CombiketelJa
  • BrandstofGas
  • EigendomEigendom

Buitenruimte

  • TuinGeen tuin
  • AchteromNee

Parkeergelegenheid

  • Parkeer faciliteitenOpenbaar parkeren
  • GarageGeen garage

Dak

  • Soort dakDwarskap
  • Materiaal dakPannen

Overig

  • Permanente bewoningJa
  • Onderhoud binnenRedelijk tot goed
  • Onderhoud buitenRedelijk tot goed
  • Huidig gebruikWoonruimte
  • Huidige bestemmingWoonruimte

Zuidbroek

Kerkstraat 42a,
9636 AC Zuidbroek
+31598 453 355
Brandsma de Jong – Zuidbroek

Vragen?

Wij helpen u graag